Willkommen in diesem bezaubernden Wohn- und Geschäftshaus in Schalksmühle-Heedfeld, das sowohl durch seinen Charme als auch durch seine vielseitigen Nutzungsmöglichkeiten besticht. Dieses gepflegte Anwesen aus dem Baujahr 1965 bietet eine großzügige Grundstücksfläche von ca. 1.842 m² und ist ab sofort zum Kauf verfügbar.
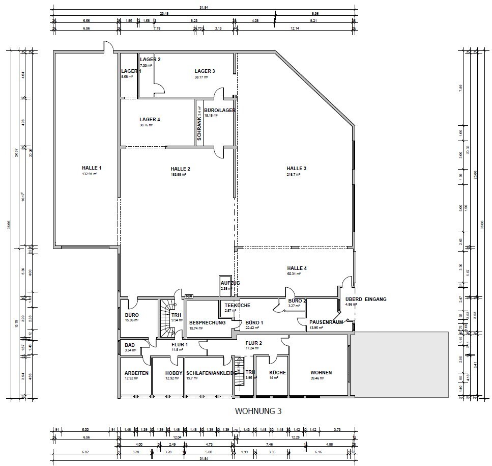
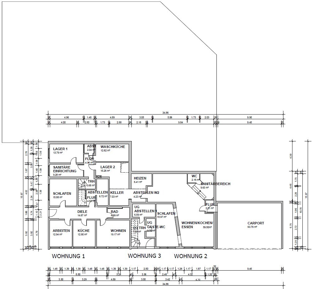
Mit einer Wohnfläche von ca. 342 m² und zwei Etagen bietet dieses teilunterkellerte Haus ausreichend Platz für die Umsetzung Ihrer individuellen Wohn- und Geschäftsideen. Zwei der insgesamt drei Wohnungen sind auf einem gehobenen Niveau. Eine Wohnung ist vakant und ist daher perfekt zur Eigennutzung geeignet.
Die Lagerhalle mit ca. 730 m² sowie das Büro mit ca. 74 m² sind ebenfalls bezugsfrei und kann somit hervorragend für den eigenen Betrieb gebraucht werden.
Für den Fuhrpark ist ebenfalls bestens gesorgt. Zur Benutzung stehen insgesamt 3 Carportstellplätze sowie 9 Außenstellplätze bereit.
Beheizt wird das Gebäude mit einem Gas-Brennwertkessel sowie einem regenerativem Holz-Vergaserkessel.
Technische Angaben
- ImmoNr
- 578
Kategorie
- Objektart
- Hallen/Lager/Produktion
- Objekttyp
- Industriehalle
- Nutzungsart
- Gewerbe
- Vermarktungsart
- Kauf
Geografische Angaben
- PLZ
- 58579
- Ort
- Schalksmühle / Heedfeld
- Land
- Deutschland
Flächen
- Bürofläche
- ca. 74 m²
- Wohnfläche
- ca. 342 m²
- Gewerbefläche
- ca. 804 m²
- Anzahl Wohneinheiten
- 3
Preise
- Außen-Provision
- 3,57 % des verbrieften Kaufpreises (inkl. 19 % MwSt.)
- Kaufpreis
- 999.000,00 €
Ausstattung
Terrasse
- Befeuerung
- Gas
- Etagenzahl
- 2
- Stellplätze
- 3 Carports, 9 Freiplätze
Beschreibung
Lage
Die idyllische Lage bietet eine perfekte Kombination aus ländlicher Ruhe und städtischer Nähe, ideal für professionelles Arbeiten und behagliches Wohnen. Die Umgebung ist geprägt von einer harmonischen Mischung aus Wohn- und Gewerbeimmobilien, eingebettet in die malerische Landschaft des Sauerlandes.
Durch die hervorragende Anbindung an die Bundesstraßen B54 und B229 ist sowohl das Stadtzentrum von Schalksmühle als auch die benachbarten Städte Lüdenscheid und Hagen schnell erreichbar. Hierdurch sind sowohl Einkaufsmöglichkeiten, medizinische Versorgungseinrichtungen als auch eine Vielzahl von Bildungs- und Freizeitangeboten problemlos zugänglich.
Die nahegelegenen Naherholungsgebiete, insbesondere die Wanderwege und Naturschutzgebiete des Sauerlandes, bieten vielfältige Möglichkeiten zur Entspannung und Freizeitgestaltung im Freien. Die ruhige und familienfreundliche Umgebung macht diesen Standort zu einem begehrten Wohngebiet sowohl für junge Familien als auch für Berufspendler.
Des Weiteren befinden sich fußläufig erreichbar ein Kindergarten, eine Grundschule sowie ein Supermarkt.
Insgesamt ist die Lage des Hauses sowohl für privates Wohnen als auch für geschäftliche Tätigkeiten optimal geeignet und bietet eine ausgezeichnete Lebensqualität in einer reizvollen und gut angebundenen Umgebung.
Durch die hervorragende Anbindung an die Bundesstraßen B54 und B229 ist sowohl das Stadtzentrum von Schalksmühle als auch die benachbarten Städte Lüdenscheid und Hagen schnell erreichbar. Hierdurch sind sowohl Einkaufsmöglichkeiten, medizinische Versorgungseinrichtungen als auch eine Vielzahl von Bildungs- und Freizeitangeboten problemlos zugänglich.
Die nahegelegenen Naherholungsgebiete, insbesondere die Wanderwege und Naturschutzgebiete des Sauerlandes, bieten vielfältige Möglichkeiten zur Entspannung und Freizeitgestaltung im Freien. Die ruhige und familienfreundliche Umgebung macht diesen Standort zu einem begehrten Wohngebiet sowohl für junge Familien als auch für Berufspendler.
Des Weiteren befinden sich fußläufig erreichbar ein Kindergarten, eine Grundschule sowie ein Supermarkt.
Insgesamt ist die Lage des Hauses sowohl für privates Wohnen als auch für geschäftliche Tätigkeiten optimal geeignet und bietet eine ausgezeichnete Lebensqualität in einer reizvollen und gut angebundenen Umgebung.
Sonstige Angaben
BEZUG / ÜBERNAHME
Die Immobilie kann nach Absprache mit den Eigentümern übernommen werden.
ZAHLUNGSWEISE
Die Sicherstellung der Kaufpreiszahlung ist selbstverständlich.
FINANZIERUNG
Die Finanzierung einer Immobilie ist grundsätzlich individuell. Bei uns erhalten Sie eine kompetente und bankenunabhängige Beratung mit dem Ziel einer zinsgünstigen und auf Sie zugeschnittenen Baufinanzierung.
PROVISION
Die Provision beträgt 3,57 % einschließlich gesetzlicher Mehrwertsteuer von dem im Kaufvertrag vereinbarten Kaufpreis. Diese Courtage ist selbstverständlich nur im Erwerbsfall zu zahlen.
ANGABEN
Alle genannten Angaben zum Objekt beruhen auf den Angaben des Eigentümers. Der Makler übernimmt keine Haftung für die aufgeführten Daten.
BERATUNGSGESPRÄCH ENRGIEBERATER
Gemäß den gesetzlichen Vorgaben steht Ihnen ein Energieberater gerne für ein kostenloses und unverbindliches Beratungsgespräch zur Verfügung.
Die Immobilie kann nach Absprache mit den Eigentümern übernommen werden.
ZAHLUNGSWEISE
Die Sicherstellung der Kaufpreiszahlung ist selbstverständlich.
FINANZIERUNG
Die Finanzierung einer Immobilie ist grundsätzlich individuell. Bei uns erhalten Sie eine kompetente und bankenunabhängige Beratung mit dem Ziel einer zinsgünstigen und auf Sie zugeschnittenen Baufinanzierung.
PROVISION
Die Provision beträgt 3,57 % einschließlich gesetzlicher Mehrwertsteuer von dem im Kaufvertrag vereinbarten Kaufpreis. Diese Courtage ist selbstverständlich nur im Erwerbsfall zu zahlen.
ANGABEN
Alle genannten Angaben zum Objekt beruhen auf den Angaben des Eigentümers. Der Makler übernimmt keine Haftung für die aufgeführten Daten.
BERATUNGSGESPRÄCH ENRGIEBERATER
Gemäß den gesetzlichen Vorgaben steht Ihnen ein Energieberater gerne für ein kostenloses und unverbindliches Beratungsgespräch zur Verfügung.
Energieausweis
A+
< 30
A
30 - 50
B
50 - 75
C
75 - 100
D
100 - 130
E
130 - 160
F
160 - 200
G
200 - 250
H
> 250
- Baujahr lt. Energieausweis
- 2015
- Endenergiebedarf
- 195,2 kWh/(m²a)
- Endenergiebedarf (Wärme)
- 195,2 kWh/(m²a)
- Energieausweis
- Bedarfsausweis
- Energieausweis gültig bis
- 12.09.2035
- Energieeffizienzklasse
- F
- wesentlicher Energieträger
- Gas
Ihr Ansprechpartner
Herr Eric Oversohl
Schade Immobilien GmbH
- Tel.:
- +492351672789-98
Herscheider Straße 12
58840 Plettenberg